Straßenansicht 1
Straßenansicht 1
Straßenansicht 2
Straßenansicht 2
Hofansicht
Hofansicht
Hinterhof
Hinterhof
Hinterhof mit Werkstattgebäude
Hinterhof mit Werkstattgebäude
Gewerbeeinheit im EG rechts
Gewerbeeinheit im EG rechts
Gewerbeeinheit im EG rechts
Gewerbeeinheit im EG rechts
2-Zimmer Wohnung
2-Zimmer Wohnung
2-Zimmer Wohnung
2-Zimmer Wohnung
2-Zimmer Wohnung
2-Zimmer Wohnung
2-Zimmer Wohnung
2-Zimmer Wohnung
1-Zimmer Wohnung 1.OG
1-Zimmer Wohnung 1.OG
1-Zimmer Wohnung 1.OG
1-Zimmer Wohnung 1.OG
1-Zimmer Wohnung 1.OG
1-Zimmer Wohnung 1.OG
1-Zimmer Wohnung 1.OG Balkon
1-Zimmer Wohnung 1.OG Balkon
Lastenaufzug im Treppenhaus
Lastenaufzug im Treppenhaus
Hauseingang und Gewerbeeinheiten
Hauseingang und Gewerbeeinheiten

Beständige Wertanlage mit viel Potential

Wohn- und Geschäftshaus mit 10 Wohneinheiten und 2 Gewerbeeinheiten im Herzen von Ludwigshafen

67059 Ludwigshafen am Rhein I Objektnr. MFH-26-01

Allgemein

Objekttyp

Mehrparteienhaus

vermietbare Fläche

ca. 630 m²

Anzahl Zimmer

24

Kaufpreis

975.000,- €

Energieausweis

Heizungsart

Gas - Etagenheizung

Ausweistyp

Bedarfsausweis

Energieklasse

Baujahr

1954

Beschreibung

Ausstattung

niedrig

    Etagen

          6

Wohneinheiten

       10

Grundstück

ca. 397 m²

    Wohnfläche

  ca. 560 m²

Gewerbeeinheiten

        2

Das hier angebotene Wohn- und Geschäftshaus aus dem Baujahr 1954 präsentiert sich als vielseitiges und nachhaltig renditestarkes Anlageobjekt in zentraler Stadtlage von Ludwigshafen. Auf insgesamt 10 Wohneinheiten , hiervon 8 Wohnungen mit Balkonen und 2 Gewerbeeinheiten verteilt sich eine vermietbare Fläche von aktuell rund 630 m², angeordnet in einer funktionalen und einheitlichen Struktur mit zwei Einheiten pro Geschoss. Diese klare, mietergerechte Aufteilung im Kombination mit der zentralen Lage, sowie der sehr guten Verkehrsanbindung gewährleistet seit Jahren eine stabile Nachfrage und sorgt für eine solide Vermietungssituation.


Das Gebäude steht auf einem kompakt strukturierten Grundstück mit insgesamt ca. 397 m² Fläche. Trotz der begrenzten Grundstücksgröße wurde die bauliche Fläche optimal ausgenutzt. Die derzeitige Jahres-Nettokaltmiete von rund 53.000 € bietet eine attraktive Ausgangsbasis – durch Modernisierungsmaßnahmen, Neuvermietungen sowie die vorhandenen Ausbaupotenziale lässt sich die Rendite nachhaltig deutlich steigerbar gestalten.


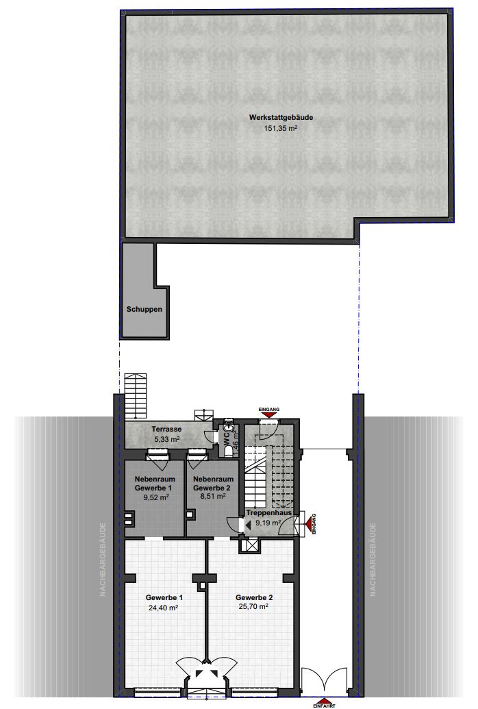
Ein Besonderheit dieser Liegenschaft ist das Werkstattgebäude im hinteren Grundstücksbereich. Mit einer Nutzfläche von ca. 151 m², einem teilunterkellerten Bereich und seiner grenzständigen Bauweise an drei Seiten eröffnet es außergewöhnliche Möglichkeiten: Von der Fortführung als Gewerbefläche bis hin zur Umnutzung bzw. zum Ausbau mit Teilaufstockungen zu zeitgemäßem Wohnraum sind hier mehrere Entwicklungsszenarien denkbar. Durch die Lage im ruhigen Innenhof entsteht zusätzlich ein attraktiver Wohncharakter mit potenziell hoher Nachfrage.


Auch das 2. Dachgeschoss des Haupthauses verfügt über weiteres Entwicklungspotenzial. Ein Ausbau zu weiterem Wohnraum mit zusätzlichen Dachaufbauten ist baulich gegebenenfalls möglich und könnte die Gesamtfläche wirtschaftlich um etwa 70—80m² erweitern. Dadurch entsteht die Chance, langfristig zusätzliche Mieterlöse zu generieren und den Gesamtwert, sowie die vermietbare Fläche des Objekts nachhaltig zu steigern.


Ein kleiner Lastenaufzug im Treppenhaus erleichtert den Transport von Einkäufen erheblich und stellt insbesondere für die Wohnungen in den oberen Geschossen einen praktischen Mehrwert dar.


Die Kombination aus funktionaler Bestandsstruktur, attraktivem Mietertrag, zusätzlichen Ausbaureserven und einer sehr guten innerstädtischen Lage macht dieses Objekt zu einer seltenen Gelegenheit für Eigennutzer, Privatanleger oder Investoren, die ein solides, entwicklungsfähiges Renditeobjekt in Ludwigshafen suchen.

Ausstattung

Balkone

 8

Denkmalschutz

nein

barrierefrei

nein

Werkstattgebäude

NF ca. 151 m²

derzeit vermietet

ja

rollstuhlgerecht

nein

Lastenaufzug

EG - DG

unterkellert

voll

ÜBERBLICK

  • solides Wohn– und Geschäftshaus, Baujahr 1954
  • 10 Wohneinheiten + 2 Gewerbeeinheiten
  • 1 1-Zimmer Wohnung
  • 8 2-Zimmer Wohnungen
  • 1 3-Zimmer Wohnung
  • Aktuelle Jahres-Nettokaltmiete ca. 53.000 €
  • Gute Sanierungs– und Erweiterungsmöglichkeiten

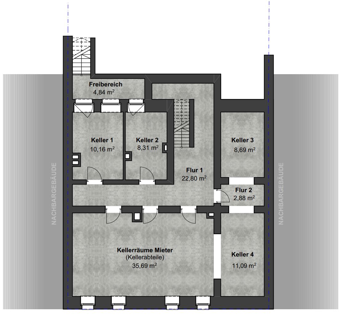
KELLERGESCHOSS

  • Vollständig unterkellert
  • Jeweils 1 Kellerraum pro Wohnung

ERDGESCHOSS

  • Flexible Nutzungsmöglichkeiten für Handel, Dienstleistungen oder Handwerk
  • Durchfahrt mit direktem Zugang zu Hinterhof und zum Werkstattgebäude

OBERGESCHOSSE

  • Jeweils 2 Wohneinheiten pro Etage
  • Gut vermietbare Wohnungsgrößen mit Balkonen
  • 1.OG              1x 1-Zimmer                         1x 3-Zimmer
  • 2.-5.OG jeweils 2x 2-Zimmer
  1. DACHGESCHOSS
  • Ausbaupotential für zusätzliche Wohneinheit

SONSTIGE MERKMALE

  • Werkstattgebäude mit ca. 164m², teilunterkellert, grenzständige Bauweise
  • Kleiner Lastenaufzug erleichtert Transportvorgänge im Haus
  • Zentrale Stadtlage mit sehr guter Vermietbarkeit

Lage

LEBEN IN LUDWIGSHAFEN

Ludwigshafen ist eine mittelgroße Industriestadt am linken Rheinufer und Teil der Metropolregion Rhein-Neckar. Die Wirtschaftsstruktur wird bis heute stark von der Chemieindustrie geprägt — insbesondere durch BASF als größten Arbeitgeber in der Region — was regionale Beschäftigung und Gewerbesteuereinnahmen sichert. Gleichzeitig investiert die Stadt in Bildungs- und Kulturangebote (z. B. Hochschule, Veranstaltungsorte) und profitiert von der Nähe zur Nachbarstadt Mannheim mit ihren ergänzenden Arbeits- und Freizeitangeboten. Insgesamt bietet Ludwigshafen ein gutes Kosten-/Nutzen-Verhältnis für Mieter und Investoren in der Region.


MIKROLAGE & DIREKTES UMFELD

Die Heinigstraße verläuft durch den Innenstadtbereich (Stadtteil Mitte) und zeigt ein typisches städtisches Umfeld mit Mehrfamilienhäusern, kleineren Gewerbeeinheiten und einigen öffentlichen Einrichtungen. In der Straße und im direkten Umfeld finden sich sowohl klassische Mietwohnungen als auch studentische Wohnheime (z. B. Heinigstraße 13) — das spricht für eine breite Mieterstruktur und gute Vermietbarkeit. Die Straßenraumgestaltung (Verkehrsflächen, Radwege, Fußgänger) ist städtisch geprägt; lokale Maßnahmen und Baumaßnahmen können kurzfristig Einfluss auf Verkehrsführung und Parkmöglichkeiten haben.


VERKEHRSANBINDUNG & INFRASTRUKTUR

Heinigstraße 25a profitiert von sehr guter Anbindung an den öffentlichen Nahverkehr sowie an das regionale Schienen- und Straßennetz. Der Ludwigshafener Hauptbahnhof (Ludwigshafen (Rhein) Hbf) stellt Regional- und Fernverkehrsverbindungen zur Verfügung; das dichte Bus- und Straßenbahnnetz der Rhein-Neckar-Verkehrsverbundes (VRN) gewährleistet kurze Verbindungen innerhalb der Stadt und in die Nachbarstädte (Mannheim, Frankenthal etc.). Die Lage ist damit sowohl für Pendler als auch für berufstätige Mieter attraktiv. Auch Kfz-Anbindung über die B-/A-Straßen ist gut erreichbar.


STADTBILD & WOHNQUALITÄT

Das Stadtbild Ludwigshafens kombiniert industrielles Erbe mit städtischen Wohnquartieren und grünen Parkflächen. In den letzten Jahren gab und gibt es Initiativen zur Aufwertung von Innenstadtbereichen und Uferzonen; dennoch sind städtebauliche Herausforderungen (z. B. aus früherer industrieller Nutzung und kommunalen Haushaltsfragen) Teil des lokalen Diskurses. Für Mieter bedeutet das: bezahlbare Wohnkosten, variable Wohnqualitäten je nach Quartier und Potenzial für künftige Aufwertungen. Micro-Standorte wie die Heinigstraße bieten klassische innerstädtische Wohnangebote — oft mit stabiler Nachfrage.


FREIZEIT & BILDUNG

Direkt in und um Ludwigshafen gibt es mehrere Freizeit- und Erholungsangebote: der große Ebertpark (grüne Erholungsfläche mit See, Spielplätzen und Veranstaltungsflächen) sowie die Rheinuferpromenade und diverse Sport- und Kulturangebote in der Region. Bildungsinfrastruktur ist gut ausgebaut: neben zahlreichen Schulen ist die Hochschule für Wirtschaft und Gesellschaft Ludwigshafen (HWG / Hochschule Ludwigshafen) ein lokaler Bildungsanker, der studentische Nachfrage vor Ort generiert. Die Nähe zu Mannheim erweitert das Angebot an Theatern, Museen und Hochschulen zusätzlich.


VORTEILE DER LAGE

  • Zentrale Innenstadtlage im Stadtteil Mitte — gute Sichtbarkeit und Nachfrage
  • Sehr gute öffentliche Verkehrsanbindung (Hbf, Straßenbahn, Bus)
  • Nähe zu großen Arbeitgebern (Industrie, BASF; uvm.), stabiler Mietermarkt
  • Grünflächen & Freizeit (Ebertpark, Rheinufer) erhöhen die Wohnqualität
  • Bestehende Mischung aus Wohn- und Gewerbenutzung -> attraktive Anlagestruktur für Investoren

Provision für Käufer

Provisionshinweis

3,57 %

Bis zum Kauf der angefragten Immobilie arbeiten wir für Sie kostenfrei. Bei Nachweis und / oder Vermittlung durch KOLLER Immobilien beträgt die Käuferprovision 3,57 % inkl. MwSt. des Kaufpreises.

Objektanfrage

Sie haben Fragen zum Objekt oder möchten einen Besichtigungstermin vereinbaren, dann schreiben Sie uns unverbindlich eine Nachricht über das Kontaktformular und wir setzen uns schnellstmöglich mit Ihnen in Verbindung.

Privacy policy

OK